Nouveau dans notre portefeuille d’appartements de luxe à Zermatt : l’appartement indépendant de deux chambres à coucher Kern Peak est un choix d’hébergement charmant qui peut accueillir quatre personnes. Kern Peak est à la fois spacieux avec 80m2 et très central, littéralement à 5 secondes de la rue principale, et à seulement 50m de la gare du Gornergrat et de la gare centrale. L’appartement est situé au deuxième étage de Haus Nevada, au même étage que notre appartement à une chambre Wheeler Peak pour deux personnes.
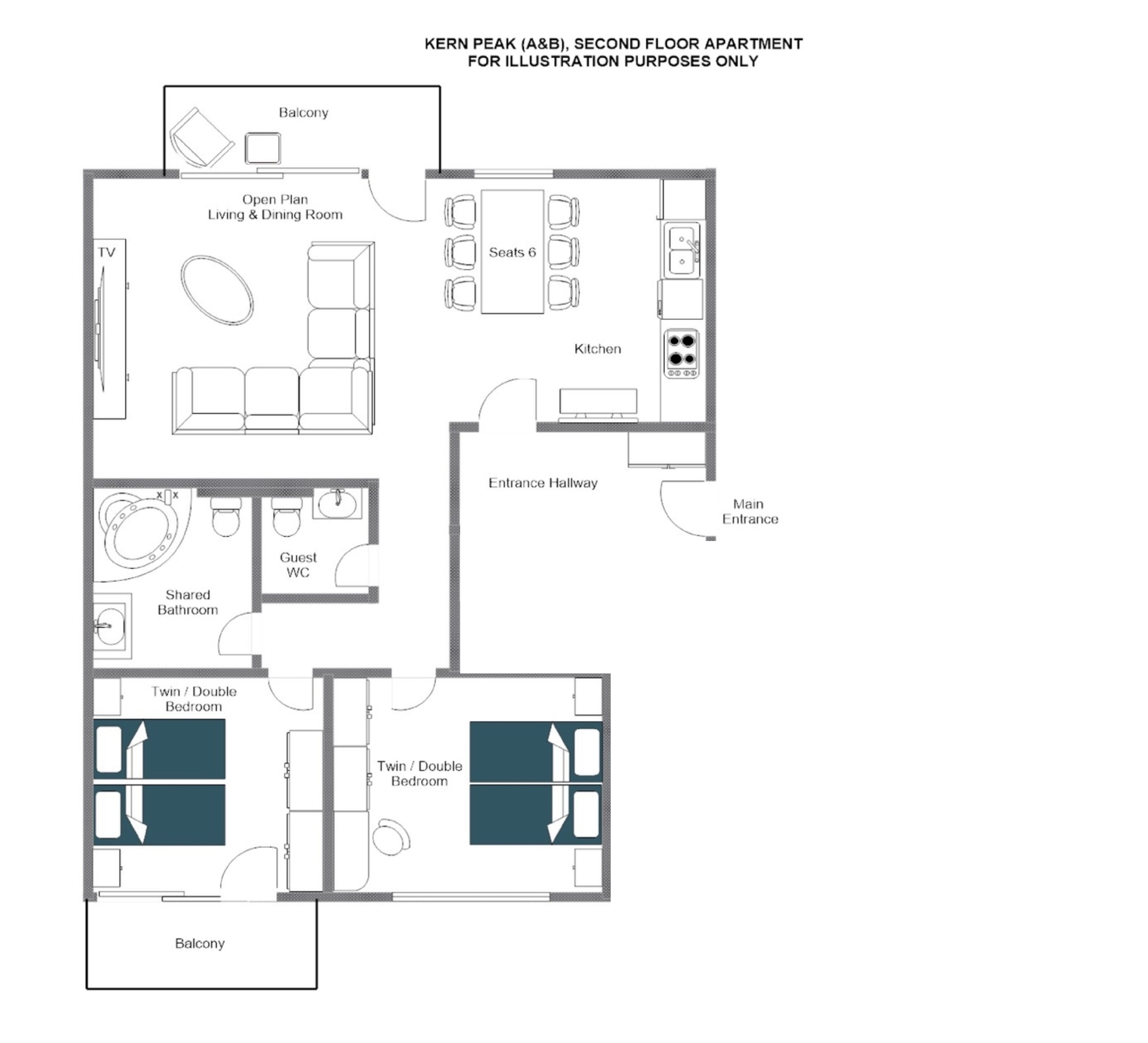
L’appartement Kern Peak se compose d’un salon avec cuisine ouverte et coin repas, d’un balcon, de deux chambres à coucher, d’une salle de bains avec baignoire et de deux balcons. Il y a également un WC séparé pour les invités avec un lavabo.
Les lits peuvent être configurés comme des lits doubles ou des lits jumeaux.
L’appartement Kern Peak est une propriété rare, très centrale et moderne, idéale pour quatre personnes souhaitant s’évader dans les montagnes, avec plus d’espace que la plupart des suites d’hôtel supérieures, de l’intimité et une cuisine où vous pouvez préparer vos propres repas. Vous pourrez également accéder facilement à la grande variété de restaurants de la rue principale de Zermatt.
Le Kern Peak peut être réservé avec le Wheeler Peak à l’étage inférieur pour accueillir jusqu’à six personnes.











